19 Viviendas V.P.O., garaje y local para la EMV

Madrid

Edificio de 8 alturas y planta semisótano con garaje y trasteros.
Superficie construida: 2.080 m2

11 Viviendas, trasteros y garaje en Barajas

Madrid

Edificio de 3 alturas y sótano con garaje y trasteros.
Superficie construida: 1.620 m2

11 Apartamentos y trasteros

Madrid

Edificio de 6 alturas y sótano.
Superficie construida: 583 m2

54 Viviendas V.P.O., trasteros y garaje en Vicálvaro

Madrid

Proyecto finalista del concurso para la construcción de 54 viviendas V.P.O. en la parcela 11.2 de Valderribas-1 en Madrid.
Promueve: E.M.V.S. Ayuntamiento de Madrid

65 Viviendas V.P.P., garaje y trasteros para la E.M.V.

Madrid

Edificio de 9 alturas y 2 sótanos con trasteros y garaje.
Superficie construida: 8.600 m2

15 Viviendas, trasteros y garaje

Madrid

Edificio de 4 alturas y 2 sótanos con garaje y trasteros.
Superficie construida: 2.700 m2

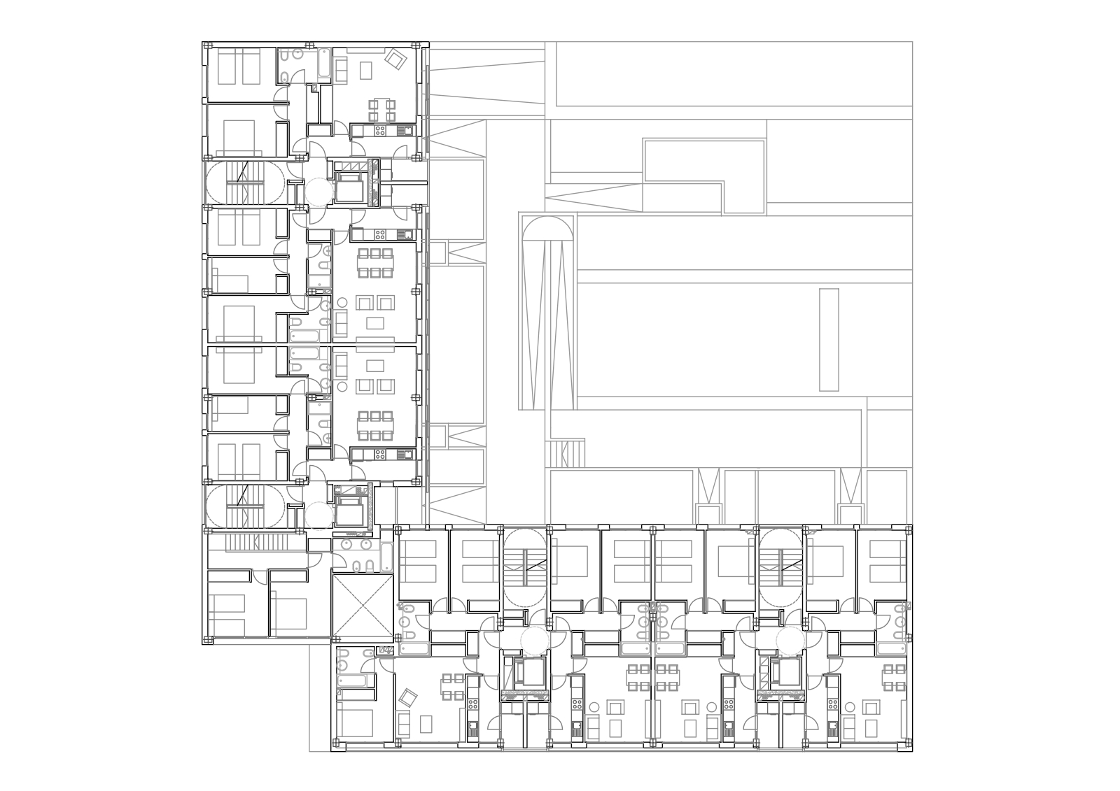
134 Viviendas V.P.P., trasteros y garaje

Alcorcón, Madrid

Concurso para 134 viviendas de protección pública V.P.P., trasteros y garaje.
Promueve: Plan Municipal de la Vivienda Pública. Ayuntamiento de Alcorcón.

alcorcon-concurso-2

134 Viviendas V.P.P., trasteros, garaje y locales comerciales

Alcorcón, Madrid

Concurso para 143 viviendas de protección pública V.P.P., trasteros, garaje y locales comerciales en Parque Oeste, Alcorcón, Madrid.
Promueve: Instituto de la Vivienda de Madrid.